Listing provided courtesy of Cyd Panaccione of Brush Realty. Last updated . Listing information © 2025 SANDICOR.
Asking Price: $79,900
725 Thornton Avenue, Hemet CA 92543
Community: Hemet
This Residential property was built in 2018 and is priced at $79,900. Please see the additional details below.
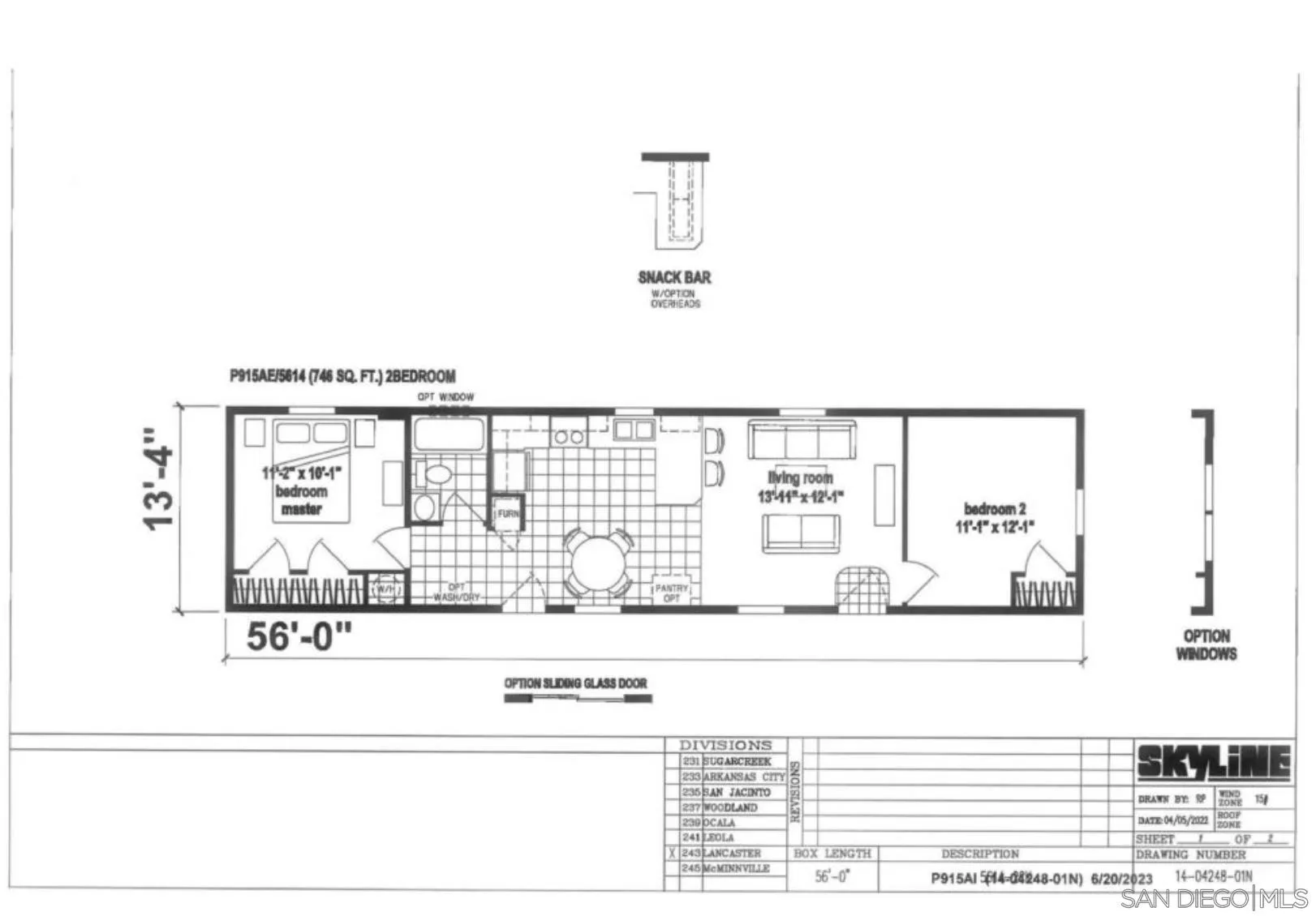
This lovely two-bedroom, one-bath home offers a bright and inviting interior with ample storage space. The charming porch adds a touch of character to the front, making it the perfect spot to relax and enjoy the outdoors. Inside, the kitchen is equipped with brand-new appliances, creating a modern and efficient cooking space. Located in the sought-after +55 senior community of London Spires, this home combines comfort and functionality for a relaxed lifestyle. Please note, this is a leased park home, with a space rent of $730 per month.




