Listing provided courtesy of Matthew Tovey of Berkshire Hathaway HomeServices California Properties. Last updated . Listing information © 2025 SANDICOR.
Asking Price: $1,599,000
Calle Rancho Vista, Encinitas CA 92024
Community: Olivenhain
This Lot property was built in and is priced at $1,599,000. Please see the additional details below.
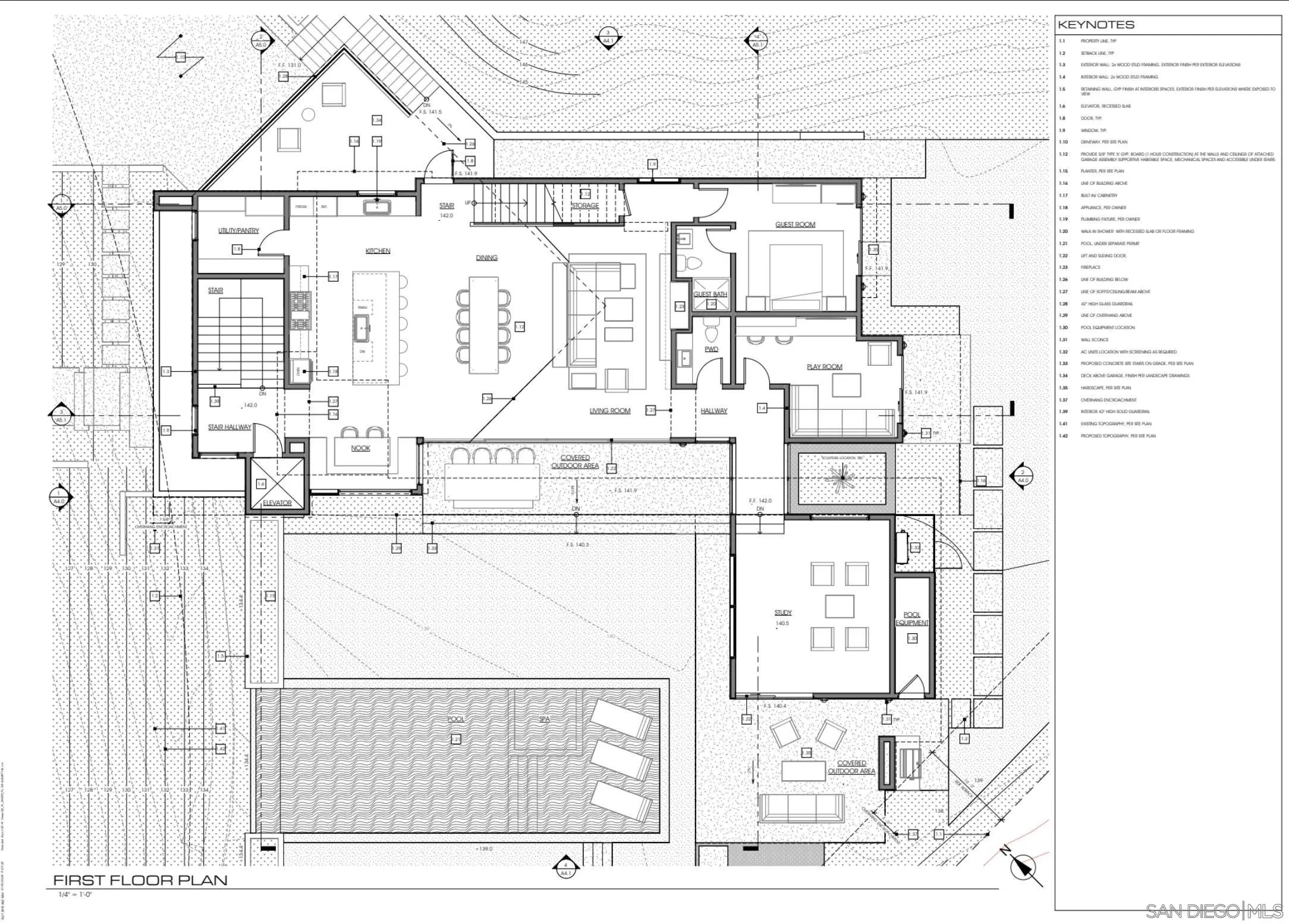
MOTIVATED SELLER. Seller is in escrow on a different property and has a tight window to close. Seller will look at all offers as long as his current up-leg property is in the picture. One of the Last Remaining Lots in Olivenhain – Canyon Views | Prime Location. Rare opportunity to build a custom estate on one of the final available lots in a private Olivenhain cul-de-sac, just 10 minutes from Cardiff Beach. This exceptional property offers stunning canyon views and over three years of completed work with the City of Encinitas. The proposed design features a 4,600 sq ft custom home with a 1,000 sq ft subterranean 4-car garage, 4 bedrooms (plus optional 5th), office, study, private elevator, oversized walk-in pantry, 250 sq ft primary closet, and a spacious backyard with a front-facing infinity edge pool. Progress highlights: Soils and ecological reports completed, grading and slope evaluations done, fire, water, and sewer services evaluated at the street Ready to enter structural and construction "doc" phase. With just one lot left in this coveted neighborhood, and the potential to break ground as soon as early 2026, this is a rare chance to create a signature home in one of North County’s most desirable communities.





















