Listing provided courtesy of Charlie Baker of Redfin Corporation. Last updated . Listing information © 2025 SANDICOR.
Asking Price: $999,900
1769 Red Barn Rd, Encinitas CA 92024
Community: Village Park
This Residential property was built in 1972 and is priced at $999,900. Please see the additional details below.
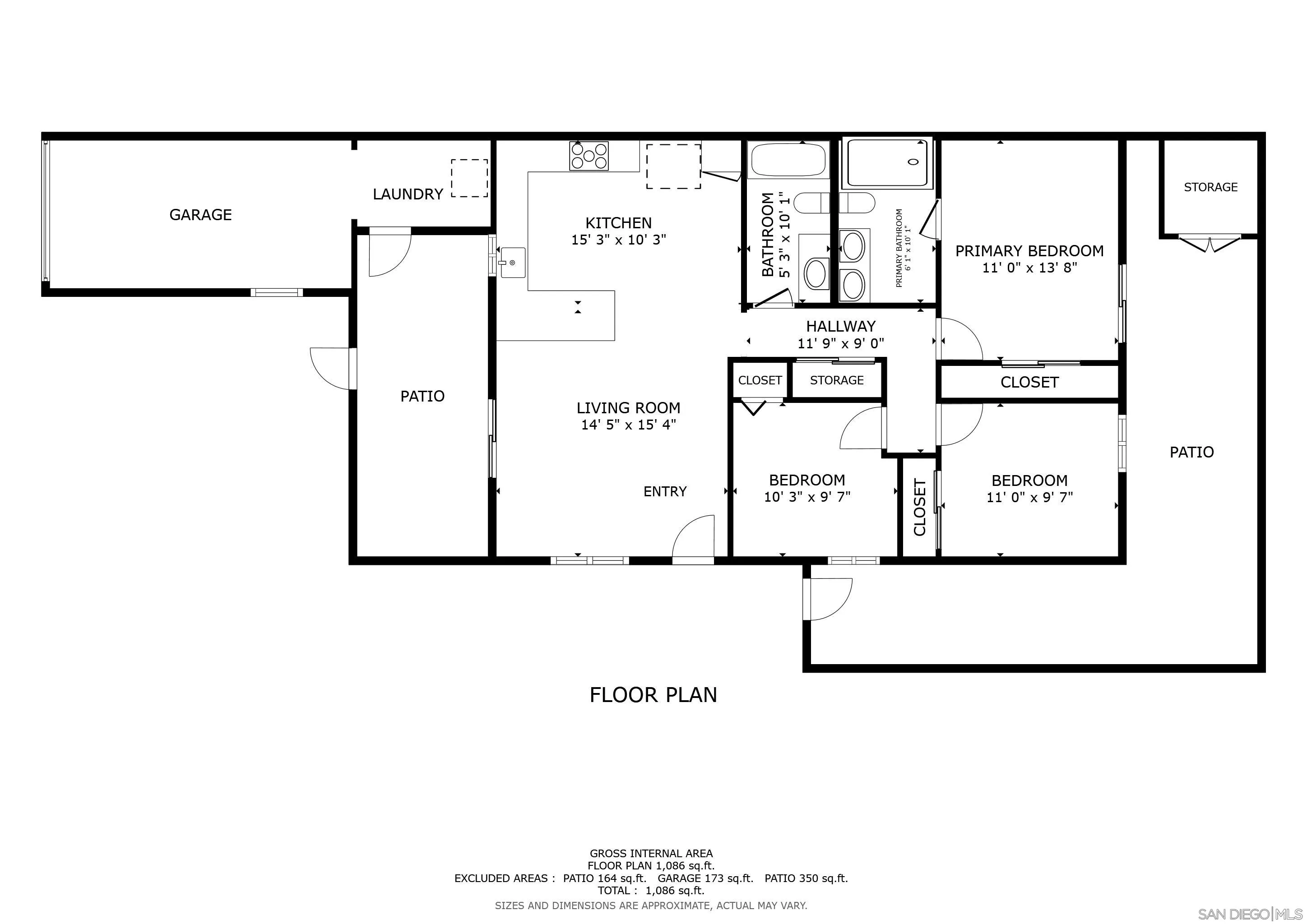
Single level attached home located within the Village Park community of Encinitas. Extensive interior remodel has just been completed, including a brand new tankless water heater! Situated in a cul-de-sac this is an END unit with only one attached neighbor. 3 bedrooms & 2 bathrooms features an open living space & kitchen. Fully fenced patio space at front and rear of the property includes a storage shed. Adjacent to vast open green spaces and nearby community pool, spa, playground and tennis courts. Attached one car garage with up to three additional driveway parking spaces. Dog and pet friendly community. Highly rated Encinitas & San Dieguito Unified schools are all close by!































