Listing provided courtesy of John Goga of RedRock. Last updated . Listing information © 2025 SANDICOR.
Asking Price: $40,000,000
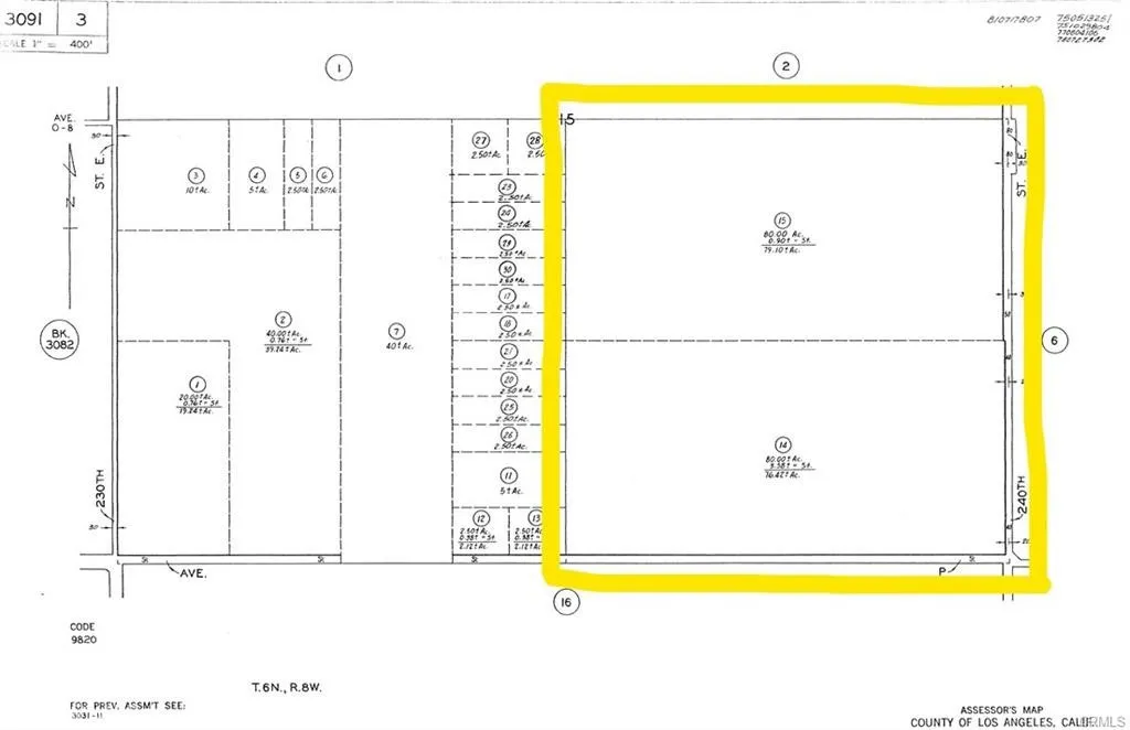
Corner of 240th St E and Avenue P, Palmdale CA 93591
Community:
This Lot property was built in and is priced at $40,000,000. Please see the additional details below.
Prime Desert Land for Sale Unmatched opportunity for investors and developers near the planned high desert corridor rail corridor from Palmdale to Victorville and on to Las Vegas. Unlock the potential of this expansive, prime desert property, located east of Palmdale in the heart of Californias high desert region. Spanning 160 acres, this large vacant lot offers unparalleled development opportunities in a soon to be evolving area, strategically positioned in the path of development near the future route of the high desert corridor of California's new high-speed rail system. This highly desirable location promises significant appreciation potential as the High Desert Corridor project will enhance connectivity and dramatically improve access to major cities, making this land an ideal choice for forward-thinking investors and developers. With the high-speed rail coming to the area, this property is poised to become a prime hub for commercial, residential and mixed-use development. Potential commercial development could include industrial parks and logistics hubs, taking advantage of the future transportation infrastructure. The rail connection will make this area an attractive location for businesses seeking easy access to major metropolitan areas. Residential projects may include large-scale residential developments with the added convenience of quick access to the high-speed rail for commuters and residents seeking proximity to both the desert and urban centers. And with its stunning desert landscape and the high-speed rail bringing increased visitors, this area could be an






