Listing provided courtesy of Todd Myatt of Century 21 Masters. Last updated . Listing information © 2025 SANDICOR.
Asking Price: $670,752
2739 Amberley Privado, Ontario CA 91762
Community: Falloncrest
This Residential property was built in 2025 and is priced at $670,752. Please see the additional details below.
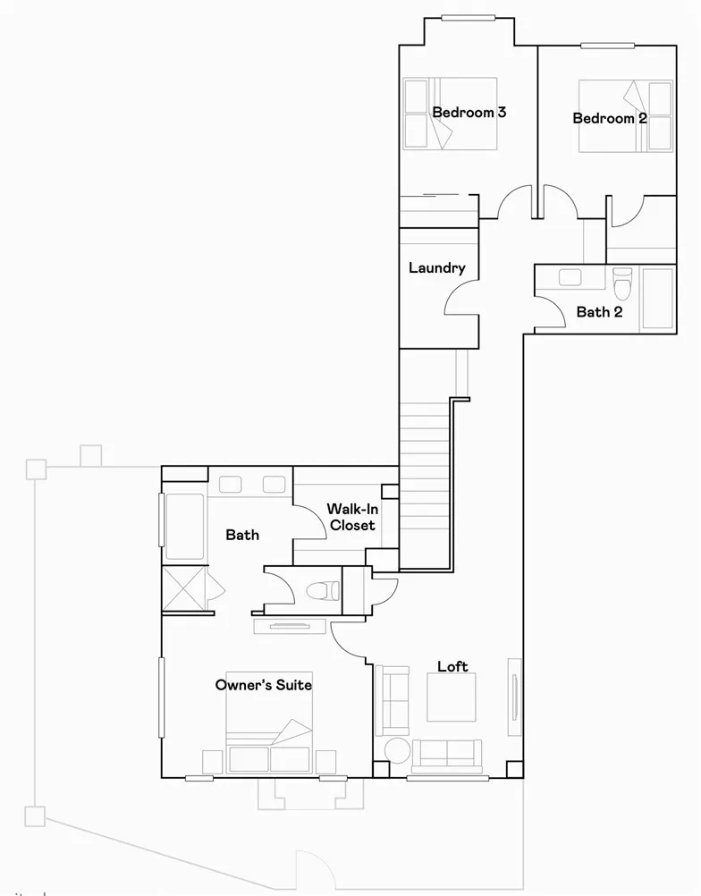
NEW CONSTRUCTION! Ready for Immediate Move-in! This two-story home is designed with hosting special gatherings in mind, with the first floor sharing an open layout between the kitchen, dining room and Great Room. Upstairs is a versatile loft that can serve as an additional shared living space, office or play area, depending on the household's needs. There are two secondary bedrooms on the second floor, along with a luxe owner's suite sitting privately in its own corner with an en-suite bathroom and walk-in closet. The kitchen features Miami Vena white quartz counters and white cabinetry. Ashbrook is a collection of new condominiums for sale in the Falloncrest master-planned community in Ontario, CA. Enjoy a multitude of onsite amenities, such as a social clubhouse, sparkling swimming pool, parks, picnic areas and a tot lot for the little ones to enjoy. A variety of shopping options are within close reach at Ontario Mills and Victoria Gardens. Or, enjoy some leisure at local spots such as San Antonio Winery or El Prado Golf Course.

























