Listing provided courtesy of Bernie Linden of Coldwell Banker Realty. Last updated . Listing information © 2025 SANDICOR.
Asking Price: $1,099,000
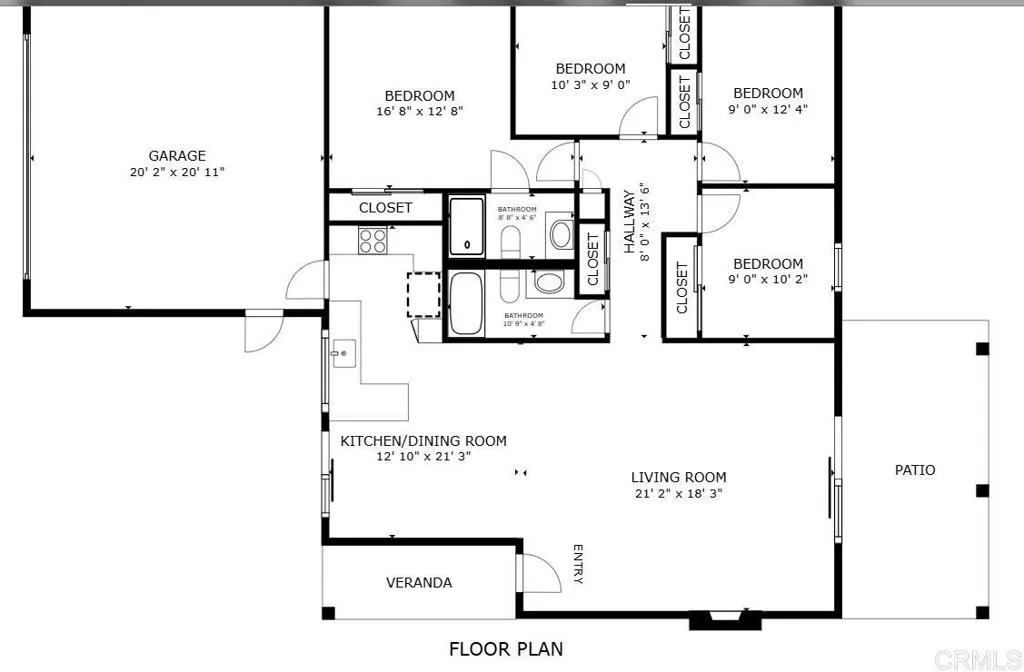
15576 Paseo Ajanta, San Diego CA 92129
Community: Rolling Hills
This Residential property was built in 1977 and is priced at $1,099,000. Please see the additional details below.
Welcome to 15576 Paseo Ajanta, a stunning single-story gem tucked into the peaceful Rolling Hills neighborhood of Rancho Peasquitos. With 4 bedrooms, 2 bathrooms, and no HOA or Mello Roos! Step inside to discover a thoughtfully designed open floor plan that makes everyday living feel effortless and entertaining a cinch. The spacious living room invites gatherings large and small, while the adjacent dining area opens to a charming patio; perfect for a morning coffee or evening unwinding. The open-concept kitchen keeps you connected to the action, whether you're hosting a holiday dinner or enjoying a quiet night in. Freshly painted with new carpet, a new water heater, and updated hardscaping and landscaping, this home shines inside and out. You'll appreciate the pride of ownership from the moment you arrive. Located just moments from award-winning Rolling Hills Elementary and the beloved local park featuring Siennas playground, open green space, sport courts, and dog-friendly paths this pocket of PQ is always in demand. If Rancho Peasquitos is on your radar, this home deserves a spot at the top of your list.












































