Listing provided courtesy of Jacob Edwards of GreenTree Properties. Last updated . Listing information © 2025 SANDICOR.
Asking Price: $995,000
24681 Camden Court, Laguna Niguel CA 92677
Community:
This Residential property was built in 1989 and is priced at $995,000. Please see the additional details below.
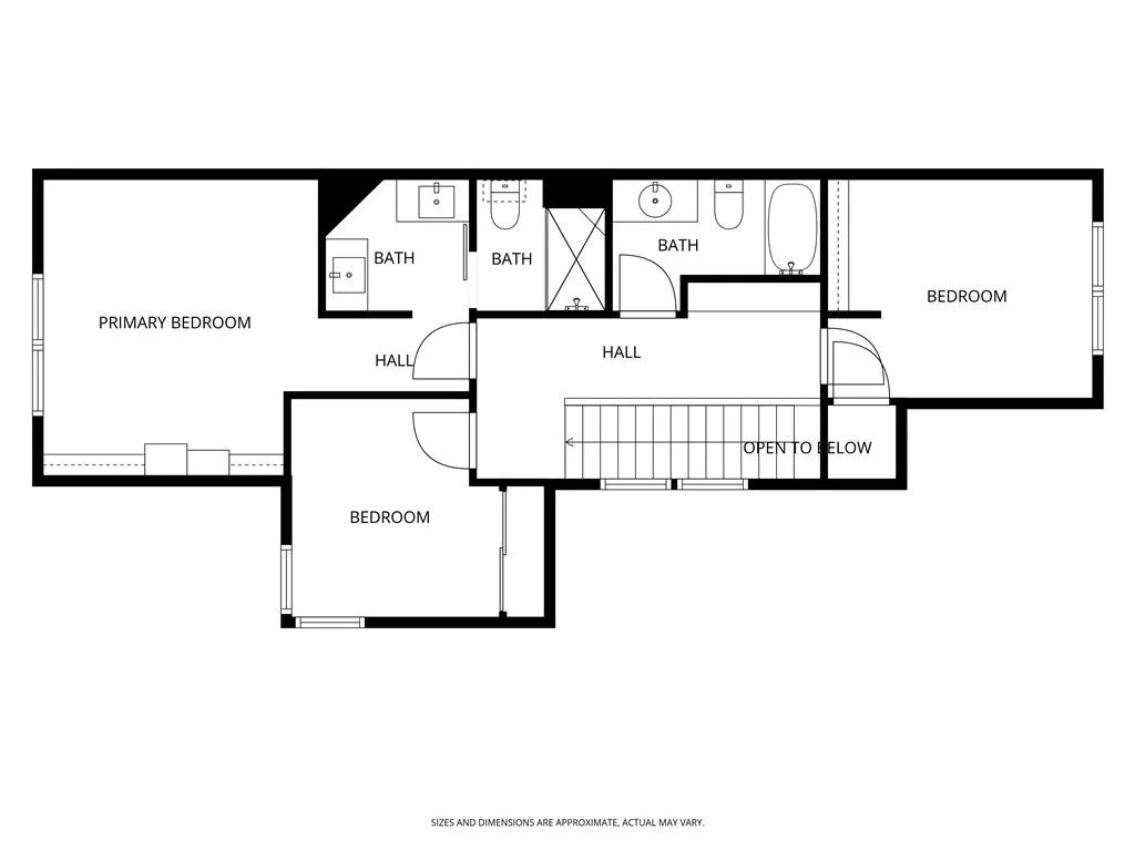
Welcome to the highly desirable and quiet community of Camden Court! Located just minutes from world class beaches and Dana Point Harbor. This recently renovated 1380 square foot, three bedroom, two and a half bath home is just what you're looking for. The spacious open floor plan flows seamlessly from the vaulted ceilinged great room into the newly remodeled and upgraded kitchen. Just a few steps takes you out to the low maintenance, hardscape back patio. Newer gray laminate flooring throughout the ground floor and stairway blend into matching "wood" tile floor in the upstairs hallway and primary bedroom and bathroom. The large primary suite offers a beautifully updated, remodeled bathroom with dual vanity and walk-in shower. Two nicely sized secondary bedrooms and plenty of storage space finish off the second floor. The attached two car garage has plenty of room and storage for all of your extras and even has surfboard racks. The entire community of Camden Court has recently been painted and re-roofed. The property sits close to the community pool as well as tennis/basket ball courts, parks and a trail that leads directly to Salt Creek Beach. Low HOA fees and no mello-roos. Don't miss this opportunity!














































