Listing provided courtesy of Carol Rounsley of Berkshire Hathaway HomeServices California Properties. Last updated . Listing information © 2025 SANDICOR.

Asking Price: $650,000

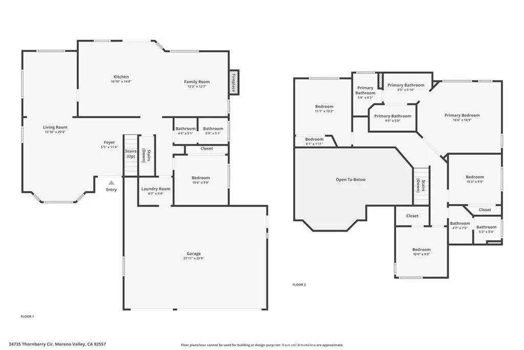
24735 Thornberry Circle, Moreno Valley CA 92557

Community: ​Sunnymead Ranch


This Residential property was built in 1988 and is priced at $650,000. Please see the additional details below.
  • 2,363 Sq Ft
  • 3 bathrooms
  • 5 bedrooms
  • MLS#: 306513842
  • Type: Residential
  • Year Built: 1988
This 5-Bedroom home is nestled north of the freeway in a quiet and established neighborhood found in the award-winning Sunnymead Ranch Homeowner Association, that includes fantastic amenities such as a community pool and spa, sports courts, picnic areas, playgrounds, a fishing lake, a beautiful clubhouse, and shared RV parking. A marvelous floor plan accented by a newly painted interior and new carpet includes a main floor bedroom with adjacent bath perfect for your guests, or multigenerational living. Four spacious bedrooms upstairs include a primary bedroom through double door entry, a walk-in closet, and adjoining full bath. Windows in the living room and dining area fill the space with natural light, creating a warm and inviting atmosphere. The kitchen opens to a cozy fireplace in the family room and access to the dining area making it perfect for gatherings; plenty of cabinets including a wall pantry provide amazing storage possibilities, a prep island awaits culinary adventure. You are invited to imagine the possibilities, explore the depths of your creativity and make this house your home.

Call or Email John Cabral now to inquire about this property

858-229-3001