Listing provided courtesy of Brett Williams of Timothy Toye and Associates. Last updated . Listing information © 2025 SANDICOR.
Asking Price: $399,000
13110 Everglade Boulevard, Clearlake Oaks CA 95423
Community:
This Residential property was built in 1992 and is priced at $399,000. Please see the additional details below.
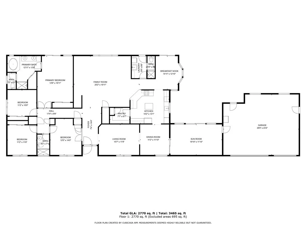
Welcome to this spacious waterfront 4-bedroom, 4-bath home in the Clearlake Keys neighborhood, just off Keys Blvd. This unique home offers plenty of comfort and functionality with central air and heat supported by two AC units, keeping the home comfortable year-round. This home offers a rec room with garage and deck access. The yard is fully landscaped. Enjoy the open deck overlooking the water, perfect for morning coffee or entertaining guests, complete with built in hot tub on the deck. The master suite is a true retreat featuring a jetted tub, adding a touch of luxury to everyday living. Including a tub/shower. Outside, the property offers a good-sized yard with room for gardening or play, a two-car garage, and three additional uncovered parking spaces. Situated on a cornet lot, this home provides privacy while still being close to the heart of the neighborhood. The back yard is also fenced in. With its combination of space, waterfront views, and desirable amenities, this home is an excellent opportunity for anyone looking to enjoy lake life with comfort and style. This home is in a great area for fishing. With a community pool, club house, and recreation area. It also offers easy boat access.






























