Listing provided courtesy of Lorelei Komm of GUIDE Real Estate. Last updated . Listing information © 2025 SANDICOR.
Asking Price: $349,500
1220 Bennett Way #2, Templeton CA 93465
Community:
This Residential property was built in 1989 and is priced at $349,500. Please see the additional details below.
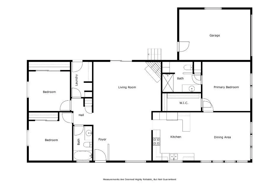
New Price! Welcome Home to the highly desirable west side Templeton, nestled in the majestic coastal hills, yet close to downtown Templetons charming restaurants, wine bars, and local shops...and Templeton schools! Remodeled and turnkey, the heart of this chic offering is the family room kitchen with a suite of stainless steel appliances, breakfast bar, generous countertop and cabinet space for cooking and entertaining, and drenched with natural light from multiple windows. Additional highlights include vaulted ceilings, stylish window coverings, ceiling fans, ample closet space, modern luxury vinyl floors throughout, and a fireplace in the great room. The primary ensuite is thoughtfully situated away from the additional bedrooms and features an extra deep walk-in closet and full bathroom. The open living and dining areas flow seamlessly to a private backyard with a spacious deck and evergreen astroturf, creating a low-maintenance retreat in a bucolic setting. The functional floor plan provides comfort and flexibility, with the primary suite located off the front den/family room and two separate bedrooms plus a full bath with shower-over-tub at the rear of the home, ideal for guests or a home office. A separate laundry room with extra cabinetry and its own backyard entrance adds convenience, while the attached garage offers more storage and an automatic door opener. Situated at the back of the park in one of the most desirable and private locations, this well-maintained, move-in ready home combines an upscale sense of elegance and beauty, making it ready for its next owner.













































