Listing provided courtesy of Weiwen Zheng of 888 Realty. Last updated . Listing information © 2025 SANDICOR.
Asking Price: $948,000
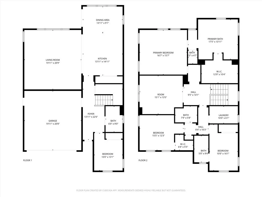
7833 Wild Rye Street, Chino CA 91708
Community:
This Residential property was built in 2017 and is priced at $948,000. Please see the additional details below.
Welcome to 7833 Wild Rye Rd, Chinoa beautifully refreshed residence featuring brand-new interior paint and new flooring throughout the second floor. This spacious well maintained 4 bedrooms, 4 FULL bath homes offers a flexible layout with a downstairs bedroom and full bath, perfect for guests or multi-generational living. The best layout in the community. The house is south north facing. The open-concept living area flows to a stylish kitchen and dining space, where sliding glass doors lead to a low-maintenance backyard, ideal for outdoor entertaining or easy everyday enjoyment. Upstairs, a bright loft provides an ideal space for a family room, home office, or play area. The luxurious primary suite boasts a spa-style bath and generous walk-in closet, while a second upstairs bedroom suite offers added comfort and privacy. The Preserve community offers resort-style amenities, including pools, spas, playground, parks, clubhouse. With modern updates, thoughtful design, and a convenient location near parks, shopping, and top-rated schools, this move-in-ready home blends elegance with effortless indooroutdoor living.














































