Listing provided courtesy of Maria Ortega Chavis of All in One Real Estate. Last updated . Listing information © 2025 SANDICOR.
Asking Price: $449,999
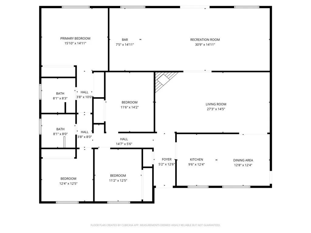
18635 Verano Street, Hesperia CA 92345
Community:
This Residential property was built in 1980 and is priced at $449,999. Please see the additional details below.
Welcome to this beautifully remodeled 4-bedroom, 2-bath home with a huge bonus loft thats perfect for entertaining, family gatherings, or creating the ultimate game room. Situated on a spacious lot, this property offers both comfort and room to grow. Step inside and enjoy the upgrades throughout: Fresh interior and exterior paint, Brand new roof, Luxury vinyl plank flooring,Stylish new light fixtures,Modern finishes that make the home move-in ready Conveniently located near Sprouts, Target, schools, and shopping centers, this home combines modern living with everyday convenience. Dont miss out on this rare find in Hesperiaschedule your showing today!





































