Listing provided courtesy of Ming Wan of 888 Realty. Last updated . Listing information © 2025 SANDICOR.
Asking Price: $600,000
2343 Via Veranda, Ontario CA 91762
Community:
This Residential property was built in 2019 and is priced at $600,000. Please see the additional details below.
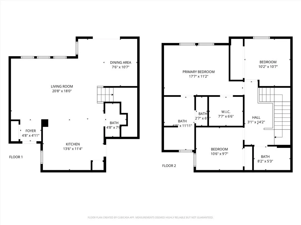
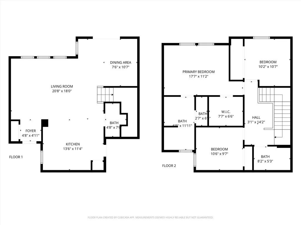
Spacious 3 bedroom Condo with rare oversized Backyard- Prime Ontario Location Welcome to this beautifully maintained 3 bedrooms, 2.5 bathroom condo offering thoughtfully designed living space in a highly desirable Ontario community. perfectly location just minutes from the 60 freeway and within walking distance to local markets and shops, this home blends comfort, convenience, and community living. Inside, you'll find a bright and open floor plan ideal for both everyday living and entertaining. The modern kitchen flows effortlessly into the dining and living areas, filled with nature light. Upstairs, enjoy three spacious bedroom, including a private primary suite with a full en-suite bathroom and ample closet space. What sets this home apart? A rare oversized backyard-larger than neighboring units- offering extra space for outdoor dining, play or simply relaxing in your own private retreat. the well-kept community also features a sparking pool, perfect for enjoying California's sunny weather. Whether you're a first-time homebuyer. downsizing, or looking for a low-maintenace lifestyle near shoppong, dining, this property is a must-see.
























