Listing provided courtesy of Barbara Martin of Coldwell Banker Realty. Last updated . Listing information © 2025 SANDICOR.
Asking Price: $690,000
3578 CHAMOUNE Avenue, San Diego CA 92105
Community: Fairmount Village
This Residential property was built in 1928 and is priced at $690,000. Please see the additional details below.
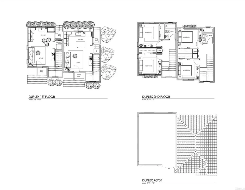
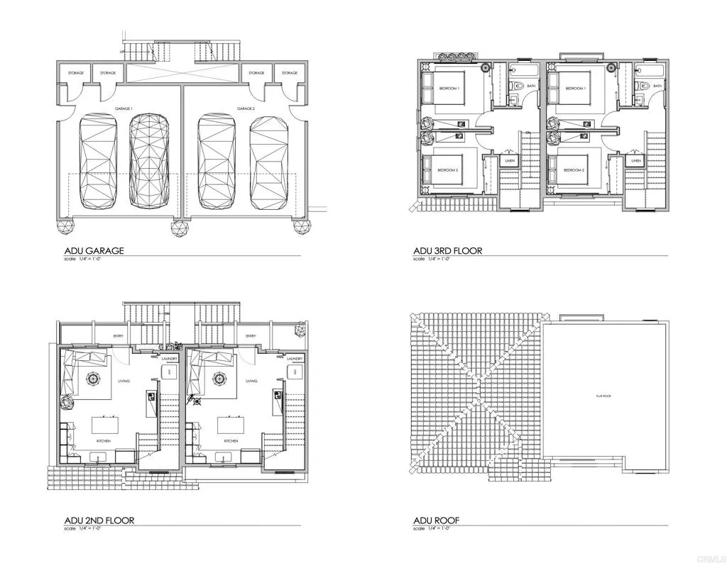
Run, dont walk Rates are dropping and you cant beat the price for this charming 2BR/1BA single story bungalow. Motivated Seller has reduced the price and recently invested a significant amount in key improvements including: Foundation work completed in Oct 2025 by Sure Safe Engineered Foundation Systems (with a lifetime transferable warranty), Cripple Walls in need of repair were replaced in Dec 2025, Termite Section 1 Clearance issued in Jan 2026! Other property highlights include: Oversized lot w/alley access (approx. 5900sf), 2-car detached garage w/ ADU potential for additional source of income, preliminary plans to expand to a four-plex in the future, move-in ready, in-home laundry, HVAC, NO HOA or Mello-Roos fees! Nestled in the vibrant East San Diego neighborhood of Fairmount Village/City Heights with 850 square feet of thoughtfully designed living space, this turn-key home perfectly blends vintage charm with modern sophistication. Perched well above the street, it offers exceptional privacy and lovely easterly views. Having more than double the lot space of some of the other nearby homes, the possibilities are endless. There is ample room to add on, start anew, build multi-units or convert the 2-car garage into an income producing granny flat, or even build an ADU above it. This property is fully fenced and has additional space for extra off-street parking on the large concrete pad next to the 2-car garage. Step inside to find a bright and airy floor plan featuring a beautifully refurbished kitchen complete with white shaker cabinets, sleek stainless energy-efficien











































