Listing provided courtesy of Amy Hall of LIV Sotheby's International. Last updated . Listing information © 2025 SANDICOR.
Asking Price: $515,000
5540 5TH, Oxnard CA 93035
Community:
This Residential property was built in 1977 and is priced at $515,000. Please see the additional details below.
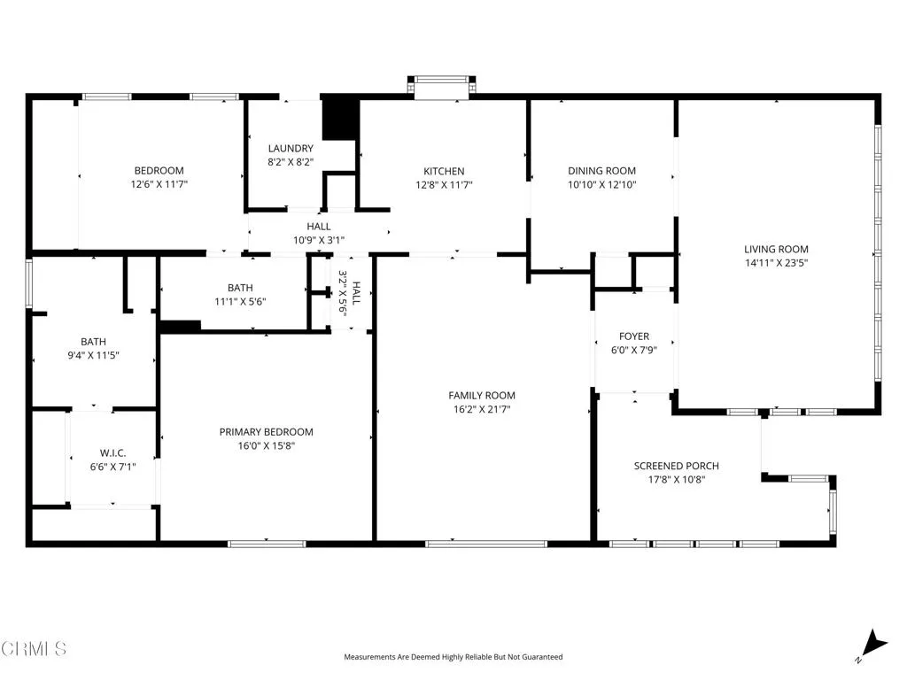
You will enjoy this amazing triple wide spacious mobile home in this ocean front family park every day ! This wonderful home was extensively updated with a new kitchen, bathrooms, laminate flooring, water heater, furnace, recessed lighting, new windows added and sealed, also up and down blinds added and gutters. Trex steps were also added at entry. In the huge family room you will love the giant smart TV with surround sound built into the walls and the built in book shelves. The dining room has lots of beautiful glass cabinets for your fine china and extra storage. The designer kitchen with upgraded stove, a new Bosch dishwasher, microwave, farmers sink with a goose neck faucet and comes with a window box to grow your fresh herbs in all year long! You will love the expansive primary suite! It has big closets and an updated bathroom with walk in shower. The whole house was leveled in 2025. The neighbors are wonderful and there is a real sense of community here and fun gatherings in the clubhouse that has a large meeting room with a kitchen, a gym, library, billiards, pool and spa! It sure is great living at the beach now you can too!






































