Listing provided courtesy of NI ZHEN of RE/MAX 2000 REALTY. Last updated . Listing information © 2025 SANDICOR.
Asking Price: $1,651,001
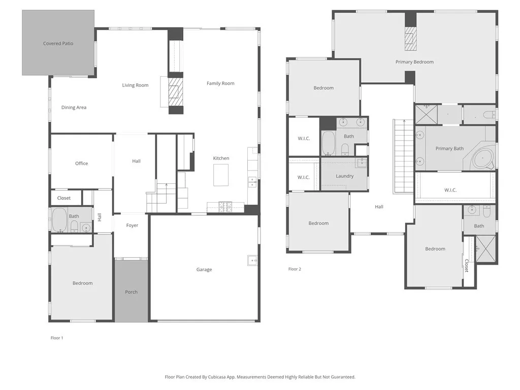
8180 Brookdale Lane, Anaheim Hills CA 92807
Community:
This Residential property was built in 2002 and is priced at $1,651,001. Please see the additional details below.
Welcome to this stunning Anaheim Hills home in a gated community offering privacy and security. The open floor plan is ideal for modern living and entertaining. The main floor features a bedroom and a home office-perfect for guests or multigenerational living. Upstairs, the primary suite boasts a fireplace, a cozy relaxation area, and a spacious walk-in closet. The front yard is newly paved and landscaped, while the backyard provides a patio and barbecue area for relaxing outdoor gatherings. Located in the highly regarded Placentia-Yorba Linda School District and close to highways, schools, and shopping, this home blends comfort, style, and convenience. In 2025, the homeowner made upgrades including fresh interior paint, kitchen tile flooring, new fences, and other improvements enhancing both style and functionality. Dont miss this opportunity-schedule your showing today!








































