Listing provided courtesy of Kris Nafziger of San Luis Bay Realty. Last updated . Listing information © 2025 SANDICOR.
Asking Price: $425,000
1700 Lynne Drive, Santa Maria CA 93454
Community: Monterey Villas
This Residential property was built in 1979 and is priced at $425,000. Please see the additional details below.
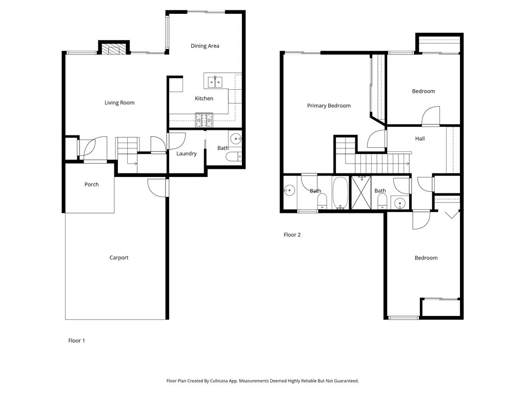
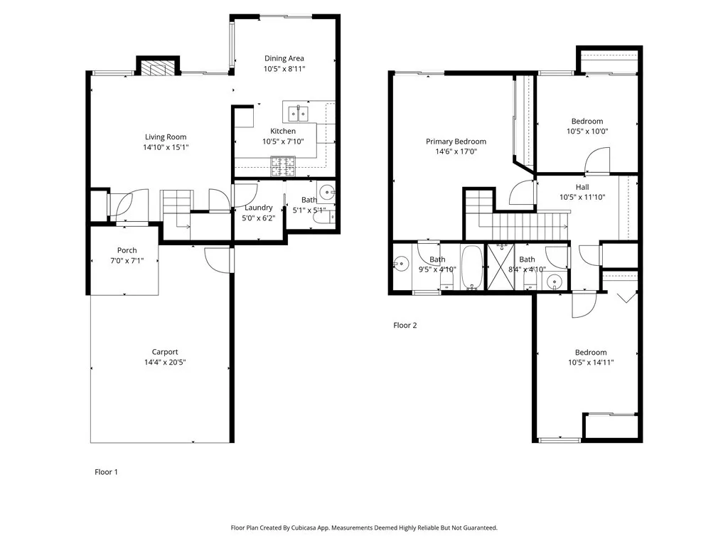
Welcome to 1700 Lynne Dr, a freshly updated 3-Bedroom, 3-Bathroom Home in a Prime Santa Maria Location! Walk into a light, airy living room with brand new carpet and fresh paint throughout the entire house, creating a bright and welcoming space to call home. This beautifully updated property features a freshly painted kitchen with brand-new appliances and ample cabinet space, perfect for cooking and entertaining. The spacious layout includes three well-sized bedrooms and three full bathrooms, including a primary suite with a brand-new bathtub. Enjoy peace of mind with a new water heater and appreciate the comfort and convenience of tasteful upgrades throughout. Step outside to your private, landscaped backyardideal for relaxing, gardening, or hosting guests. The home is situated in a great location with easy access to local amenities, and the HOA covers trash, water, maintenance, and access to the community pool and jacuzzi, offering added value and convenience. With over $40,000 in recent repairs and updates, this move-in ready home is a standout opportunity in Santa Maria. Dont miss your chance! Schedule your private tour today!





























