Listing provided courtesy of Monique Garza of Compass California, Inc.-PB. Last updated . Listing information © 2025 SANDICOR.
Asking Price: $299,000
765 Mesa View Drive, Arroyo Grande CA 93420
Community:
This Residential property was built in 2007 and is priced at $299,000. Please see the additional details below.
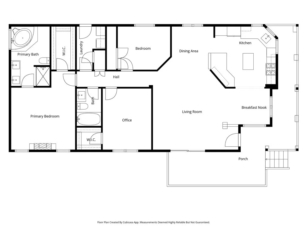
Welcome to your dream home at 765 Mesa View Dr in the serene Mesa Dunes Mobile Home Estates, Arroyo Grande, CA. This charming manufactured home offers a perfect blend of comfort and modern living, spread across 1,573 sq ft. Step inside to discover a tastefully renovated kitchen, complete with a breakfast bar, perfect for casual dining and entertaining. The formal dining room adds a touch of elegance for hosting dinners with friends and family. The home features luxury vinyl flooring and shutters, enhancing its modern appeal. With three spacious bedrooms and two well-appointed bathrooms, this home provides ample space for everyone. The master suite features a luxurious soaking tub and a convenient walk-in closet. This home is bathed in tons of natural light, creating a warm and inviting atmosphere. It ensures year-round comfort with its efficient air conditioning system. Enjoy the convenience of a washer and dryer in the unit, along with tons of storage in the included shed. Ample parking is also provided, adding to the ease of living. Residents can take advantage of the community's amenities, including a refreshing communal pool, hot tub, billiards room, and a fully-equipped gym. For social gatherings, the two clubhouses and common media/recreation room offer perfect venues. Enjoy the beautifully maintained common outdoor spaces for relaxation or leisure activities. Experience the best of both worldstranquility and activityright at your doorstep. This property presents a unique opportunity to enjoy a comfortable lifestyle in a vibrant community. Don't miss out on making thi




































