Listing provided courtesy of Evan Fellman of KELLER WILLIAMS BIG BEAR. Last updated . Listing information © 2025 SANDICOR.
Asking Price: $850,000
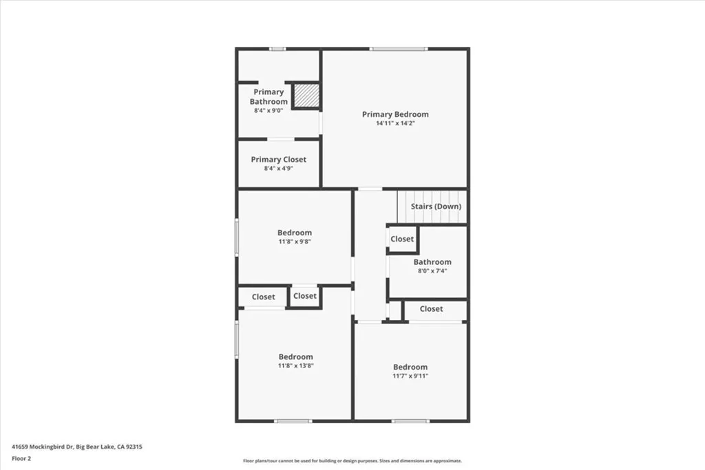
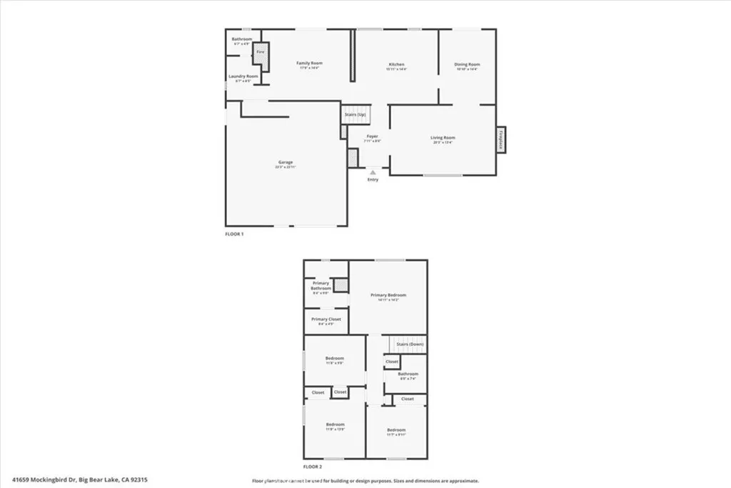
41659 Mockingbird, Big Bear Lake CA 92315
Community: Eagle Point
This Residential property was built in 1978 and is priced at $850,000. Please see the additional details below.
Discover the charm of 41659 Mockingbird Dr, a beautifully remodeled oasis in the desirable Eagle Point neighborhood of Big Bear Lake. This four-bedroom haven invites you into a lifestyle where comfort meets convenience, just a short drive away from Meadow Park, the lake, ski slopes, and the vibrant village. Step into a thoughtfully designed space where a fully updated kitchen becomes the heart of the home. Picture yourself preparing meals on gleaming granite countertops, surrounded by stainless steel appliances. The adjacent family room, with its cozy fireplace, offers a perfect spot for gathering on crisp mountain evenings. Retreat to the primary suite, a serene escape with a walk-in closet that promises to be your personal sanctuary. Modern fixtures and finishes elevate the bathrooms, creating spaces that feel both luxurious and inviting. Outside, a large back deck extends your living area into the fresh mountain air, complete with a spa for ultimate relaxation. The fenced yard provides a private retreat ideal for entertaining or simply soaking up the sun. The heated, oversized two-car garage with workspace ensures all your storage and tinkering needs are met. With fresh paint, crown molding, and new flooring throughout, this home radiates warmth and elegance. Its prime location and modern amenities make it an exceptional opportunity. Experience the unique blend of adventure and tranquility that Big Bear Lake living offers. Opportunities like this are rare - schedule your private tour today and step into a new chapter of mountain living. Information is deemed reliable but


















































