Listing provided courtesy of Paul Buller of Paul Buller Properties. Last updated . Listing information © 2025 SANDICOR.
Asking Price: $879,000
511 Meyer, Redondo Beach CA 90278
Community:
This Residential property was built in 1979 and is priced at $879,000. Please see the additional details below.
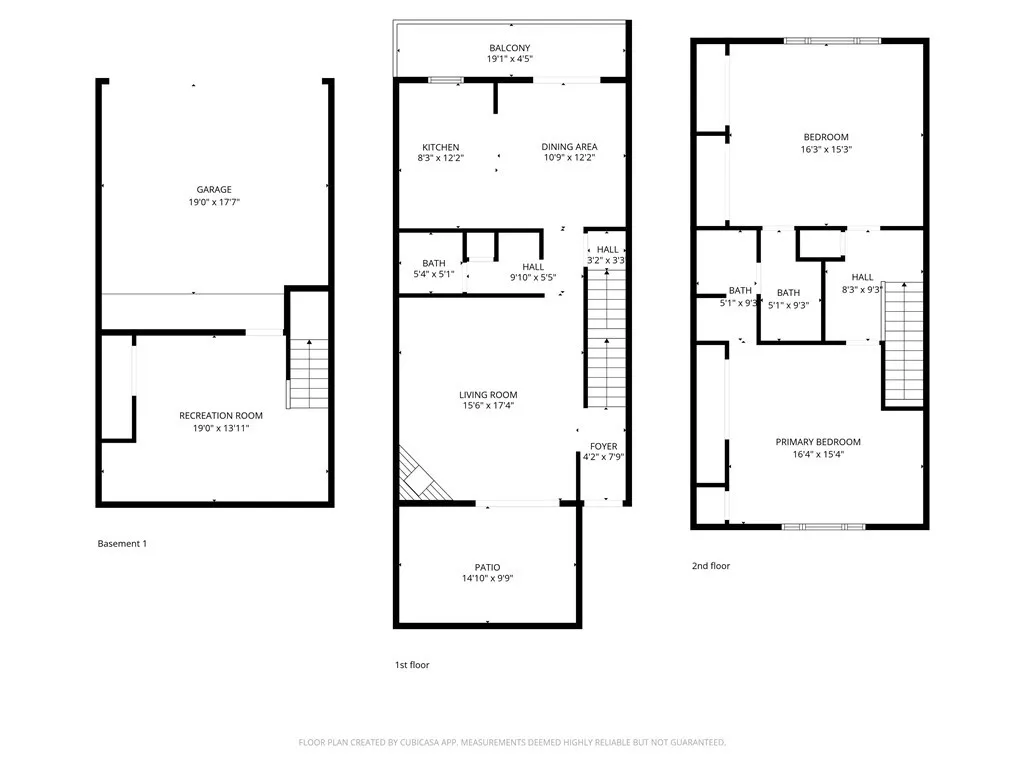
Redondo Beach Lifestyle For A low LOW Price! Dont Miss The Rare Opportunity To Call This Spacious Tri-Level Townhouse, in the Heart of Redondo Beach, Home! Step from the Lush Garden Community Walkways into the Inviting Open Floor Plan Living Room with Feature Fireplace and Effortless Indoor / Outdoor Living and Entertaining on the Huge Private Deck! Unleash Your Inner-Gourmet in the Gorgeous Fully Remodeled Chefs Kitchen with Quartz Counters, Beautifully Enhanced with Stainless Appliances and Eye-Catching White Cabinetry to Spare! Enjoy the Light & Bright Ample Dining Room with Additional Balcony to Feel Redondos Refreshing Ocean Breezes! Remodeled Guest Bathroom & Dry-Bar with Wine Fridge complete the First Level! Upstairs Features Two Expansive Bedrooms with Soaring Vaulted Ceilings, Oversized Mirrored Closets, Two Newly Remodeled Private Vanities and Bathroom! On The Lower Level find the Huge Bonus Room with Retractable Media Screen for Movie Nights or Screening the Big Game, Perhaps Add Your Workout Equipment, Set Up Your Home Office, Spare Guest Bedroom, Den, Playroom??? The Choices Are Endless! Also on the Lower Level find the Tastefully Closeted Laundry Area and Attached Private Two Car Side-by-Side Garage Providing Direct Access to Your Home! Charming Gated Garden Complex with Sparkling Pool, Spa and Clubhouse and Much More! Enjoy this Peaceful Resort-Vibe Retreat Minutes from Beaches, Parks, Award-Winning Redondo Beach Schools, Shopping & Dining! HOA includes Earthquake Insurance, Exterior Maintenance! What Are You Waiting For? Come Home To The South Bay Lifestyle





































