Listing provided courtesy of Jessica Baker of Oaks to Ocean Real Estate. Last updated . Listing information © 2025 SANDICOR.
Asking Price: $2,900,000
1985 Penman Springs, Paso Robles CA 93446
Community:
This Residential property was built in 2002 and is priced at $2,900,000. Please see the additional details below.
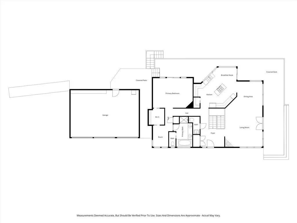
An extraordinary opportunity to own a fully established winery business and vineyard estate in one of Paso Robles most coveted locationsjust minutes from downtown yet immersed in sweeping vineyard views and serene countryside living. Set on 42 acres, this remarkable property includes the Penman Springs Vineyard brand, all inventory, and operational assets, offering a seamless transition for the next owner. Approximately 29 acres are planted to premium varietals, including but not limited to Cabernet Sauvignon, Petit Verdot, and Merlot, creating both immediate production potential and long-term value. At the heart of the estate is a 3,600 square-foot residence featuring 3 bedrooms, 2.5 bathrooms, an office, cellar room, and bonus room, thoughtfully designed to embrace both comfort and architectural distinction. The primary suite occupies the upper level, showcasing an open-concept layout with a private lounging area, walk-in closet, and ensuite bath. Vaulted ceilings, a fireplace in the living room, and walls of windows frame panoramic vineyard views from nearly every room. All guest bedrooms are located on the lower level, offering privacy and functionality. A wrap-around deck invites you to relax and take in the sun-soaked vistas, while a three-car garage provides ample storage and convenience. The property includes a tasting room, public restroom, temperature-controlled cased goods storage, and inviting paver patios designed for guest enjoyment and events. Supporting infrastructure includes four wells, two septic systems, and a detached 1,200 sf workshop/barn, offering ve



































































