Listing provided courtesy of Peggy Graham-Nyman of The ONE Luxury Properties. Last updated . Listing information © 2025 SANDICOR.
Asking Price: $535,000
15777 Jalanie, Moreno Valley CA 92551
Community: RAINBOW RIDGE
This Residential property was built in 1987 and is priced at $535,000. Please see the additional details below.
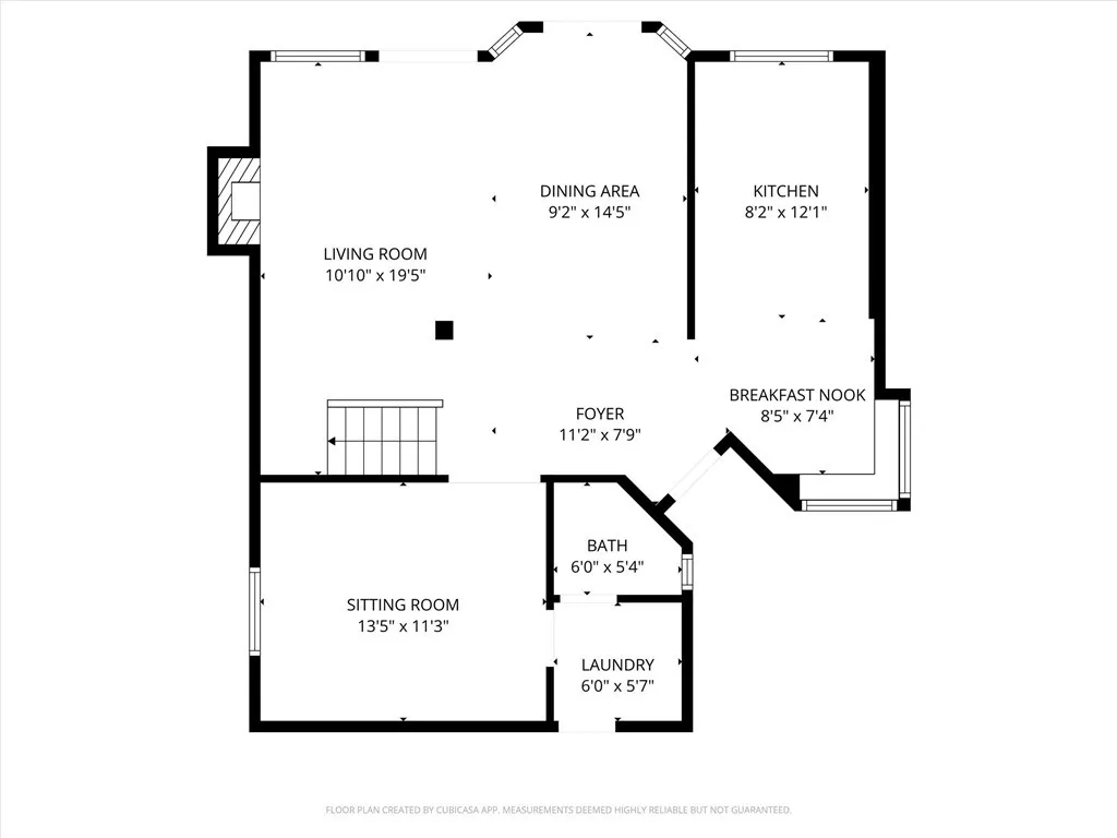
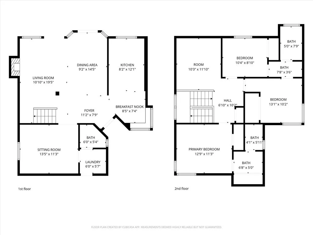
WELCOME HOME !!!!! RARE !!! REMODELED BEAUTIFUL LARGE TWO STORY ON LARGE GRASSY LOT FRAMED BY MAJESTIC PALMS . LIGHT AND BRIGHT !!! 3 SPACIOUS BEDROOMS & 3 BATHS, PLUS BUYERS WILL ALSO ENJOY A SPACIOUS LOFT (USED AS AN OFFICE ) AND AN EXTRA FAMILY ROOM DOWNSTAIRS. COZY FIREPLACE IN LIVING ROOM. EXTRA LARGE REMODELED KITCHEN WITH NEW SHAKER CABINETS AND QUARTZ COUNTERTOPS AND AN EAT- BREAKFAST NOOK WITH WINDOW SEATING. STAINLESS STEEL APPLIANCES NEW IN 2023. PRIMARY HAS AN EN-SUITE AND OTHER TWO BEDROOMS SHARE A CONNECTED JACK AND JILL BATH NEWER GORGEOUS LAMINATE WOOD FLOORING THROUGHOUT THE DOWNSTAIRS AND UPSTAIRS BATHS. THIS HOME ALREADY HAS NEWER SOLAR , A MUST IN MORENO VALLEY SUMMERS. OPEN CONCEPT GREAT ROOM , FRENCH DOORS OFF DINING AREA. LARGE COVERED PATIO FOR ENTERTAINING. CENTRALLY LOCATED TO HIGH SCHOOL, SHOPPING, RESTAURANTS AND FREEWAY. BUYERS WILL BE LINING UP TO MAKE THIS THEIR NEW DREAM HOME. BE THE FIRST TO MAKE AN OFFER ON THIS FABULOUS FIND !!!!! HOME HAS BRAND NEW AC, FURNACE,SCREENS AND FENCING.DONT FORGET TO VIEW THE MATTERPORT PHOTOS !

























































