Listing provided courtesy of Caitlyn Lai-Valenti of Brookfield Residential Sales Inc.. Last updated . Listing information © 2025 SANDICOR.
Asking Price: $543,404
4193 S. LIMECREST PASEO, Ontario CA 91761
Community: Ontario Ranch
This Residential property was built in 2026 and is priced at $543,404. Please see the additional details below.
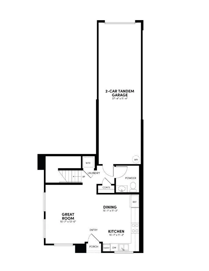
Ready in June NEW Townhome in Award-Winning New Haven! Enjoy resort-style amenities and take advantage of a special lower rate plus closing cost credit offer from the Builder on this home. Experience luxury living with this 2 Bedroom, 2 Bath and 2-car garage Townhome by Brookfield. Downstairs great room, a gourmet kitchen complete with a pantry, laundry and garage. Upstairs primary bedroom and additional 2nd bedroom with their own bathrooms. The kitchen boasts bright and white cabinets, quartz countertops, a designer-selected tile backsplash, and a premium stainless steel Whirlpool appliance package. Every detail has been fully upgraded for a truly exceptional home. Live the benefits of buying brand new: a builder warranty, energy efficiency, and included smart home features. This home is perfectly located with easy access to shopping, new schools, Southern Californias major freeways, and Ontario International Airport. New Haven residents enjoy resort-style amenities, including two indoor clubhouses, open-air clubhouses, six sparkling swimming pools, three jacuzzis, a kids' splash zone, pickleball and basketball courts, BBQ pavilions, firepits, playgrounds with a zipline, and more! An on-site lifestyle director ensures a vibrant community atmosphere. Plus, you're just steps from New Haven Marketplace, where you can indulge in restaurants, a brewery, yoga, and shopping. ASK ABOUT OUR SPECIAL FINANCING! Make homeownership a reality in this exceptional community. Your new life at New Haven awaits.


































































