Listing provided courtesy of Paul Balla of Paul K. Balla, Broker. Last updated . Listing information © 2025 SANDICOR.
Asking Price: $634,900
30830 White Pines Drive, Menifee CA 92584
Community: Quartz Ranch
This Residential property was built in 2024 and is priced at $634,900. Please see the additional details below.
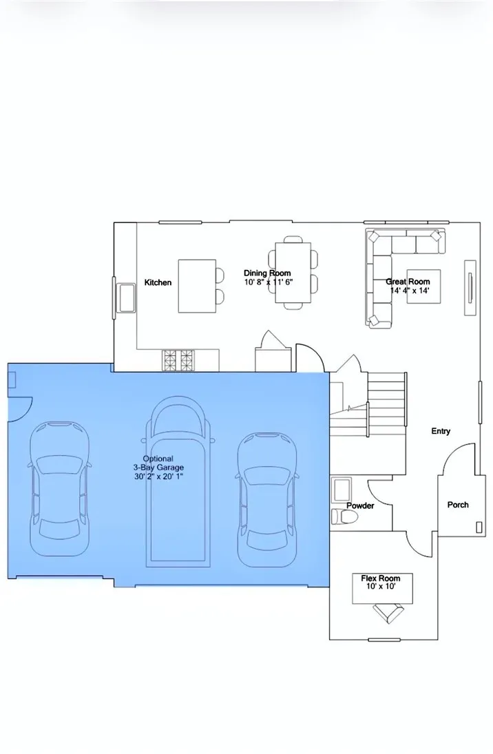
Welcome to this Desirable Quartz Ranch Spectacular Light Bright 1+year New Modern Farmhouse in the highly sought City of Menifee. Built in Nov 2024 this contemporary home offers 1824sq ft of thoughtfully designed living space. Located on a gorgeous oversized 7784 sq ft FLAT LOT, Fully Landscaped, White Vinyl fenced yard. Bask under the gorgeous white vinyl 12 x 12 Pergola on a 14x14 concrete island. All the yard is done in TURF, DG, and drought resistant plants. A gorgeous, beautiful EPOXY 3 CAR GARAGE, with OVERSIZED DRIVEWAY fitting up to 6 Cars. An additional beautiful Front Courtyard to enjoy the Sunsets and Breezes. LOW $56/mo LEASED SOLAR panels to be transferred to new owner Making Electric bill almost Nonexistent! Super LOW HOA $33/mo ! Tankless Water Heater for continuous nice hot showers. Step inside to an inviting Open-Concept floor plan filled with natural light, where the spacious great room flows seamlessly into the dining area and chef-inspired kitchen. The kitchen is the heart of the home, complete with center island, quartz countertops, stainless steel large sink and appliances, abundant cabinetry, pantry, designer ceiling fan and a designer lamp, perfect for everyday living and entertaining. All downstairs is done in Luxury VINYL PLANK FLOORS, And RECESSED LIGHTING throughout the home! A versatile downstairs office/den offers the flexibility to function as a fourth bedroom, guest room, or private workspace, conveniently located near a half bathroom on the main floor. Upstairs, youll find 2 secondary bedrooms, a full bathroom. A separate luxurious primary s























































