Listing provided courtesy of Cynthia Hom of KW Executive. Last updated . Listing information © 2025 SANDICOR.
Asking Price: $1,180,000
2237 W 230th Pl, Torrance CA 90501
Community:
This Residential property was built in 1968 and is priced at $1,180,000. Please see the additional details below.
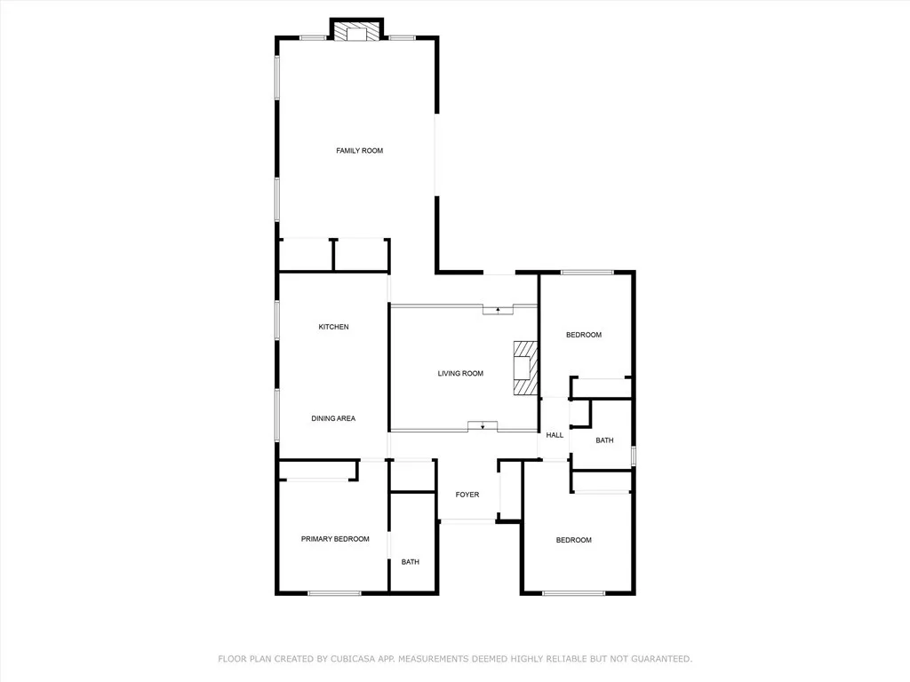
BUYER DID NOT PERFORM! Welcome to this distinctive Torrance home, showcasing striking A-frame-inspired gables paired with mid-century charm. Its unique curb appeal sets it apart, offering both style and opportunity. Step inside to discover a bright and spacious layout with large picture windows and open living areas, including a sunken living room that creates a cozy, Zen-like retreat. While the home has been lovingly maintained, its ready for your vision and a little TLC to bring out its full potential. The generous living areas, open kitchen, and comfortable bedrooms allow for both functionality and flexibility, whether youre looking to update with modern finishes or simply enhance whats already here. Nestled on aquiet residential street, the property combines convenience and comfort, withnearby shopping, dining, schools, and easy freeway and airport access. With its solid structure, thoughtful floor plan, and prime location, this home presents an incredible opportunity to create the space youve always envisioned. Dont miss the chance to unlock the full potential of this beauty!
























