Listing provided courtesy of Shellye Milazzo Wilson of Century 21 Masters. Last updated . Listing information © 2025 SANDICOR.
Asking Price: $1,179,000
1728 Tamarron, Corona CA 92883
Community:
This Residential property was built in 2002 and is priced at $1,179,000. Please see the additional details below.
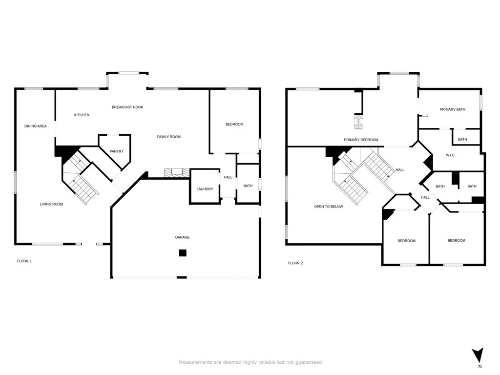
/REMODELED/NO REAR NEIGHBORS/POOL/SPA/OUTDOOR KITCHEN/ features include high-volume ceilings and a dream kitchen with all new stainless appliances with wi-fi connectivity, white cabinetry, walk-in pantry, and spacious living and dining areas. Home has oversized DOWNSTAIRS BEDROOM & BATHROOM.The entire home boasts all new interior and exterior paint , plus new flooring throughout. Offering 4 bedrooms 2.75 baths, with a serene retreat off the primary bedroom, featuring a dual sided fireplace shared with the primary bedroom. Oversized primary bath with a jetted tub, separate shower and a huge walk in closet. Downstairs bath has been refreshed with a new vanity, mirror and shower doors, inside laundry. Private outdoor oasis with rock pool ,spa, built in barbecue and no back neighbors, offers the perfect retreat. Plus, you'll be conveniently located near Wilson Elementary School, top restaurants, and the Dos Lagos and The Crossings shopping centers -everything you need just minutes away!

















































