Listing provided courtesy of Guillermo Altamirano of Oscar Tortola Group Real Estate Services. Last updated . Listing information © 2025 SANDICOR.
Asking Price: $730,000
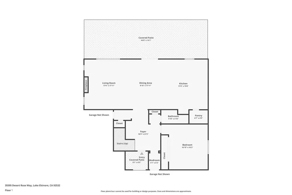
35595 Desert Rose Way, Lake Elsinore CA 92532
Community:
This Residential property was built in 2012 and is priced at $730,000. Please see the additional details below.
***HIGHLY UPGRADED + PAID OFF SOLAR*** Nestled within the exclusive, gated enclave of Bridgegate in Canyon Hills, this impeccably upgraded residence at 35595 Desert Rose Way offers a rare blend of privacy, luxury, and modern efficiency. Boasting a premium location with no neighbors directly in front, the home provides a sense of openness and tranquility that is hard to find. The striking curb appeal is complemented by a spacious three-car garage and a meticulously maintained exterior that hints at the high-end finishes found within. Step inside to discover a thoughtfully designed floor plan featuring four spacious bedrooms and three full bathrooms, plus a versatile upstairs loft perfect for a home theater, gym, or playroom. The heart of the home is the chefs dream kitchen, which has been completely reimagined with high-end appliances, custom cabinetry, and premium countertops. Whether you are hosting an intimate dinner or a large gathering, this culinary space flows seamlessly into the living areas, anchored by elegant flooring and designer touches throughout. Sustainability meets savings with a fully paid-off solar system, ensuring energy efficiency and significantly reduced utility costs for years to come. The primary suite serves as a true sanctuary, while the additional bedrooms offer ample space for family or guests. Outside, the backyard provides a private retreat to enjoy the beautiful Lake Elsinore climate. Residents of Bridge Gate also enjoy the peace of mind of a gated community along with access to the extensive parks, pools, and hiking trails that make Canyon Hi







































































