Listing provided courtesy of Juan Torres of CENTURY 21 MASTERS. Last updated . Listing information © 2025 SANDICOR.
Asking Price: $779,900
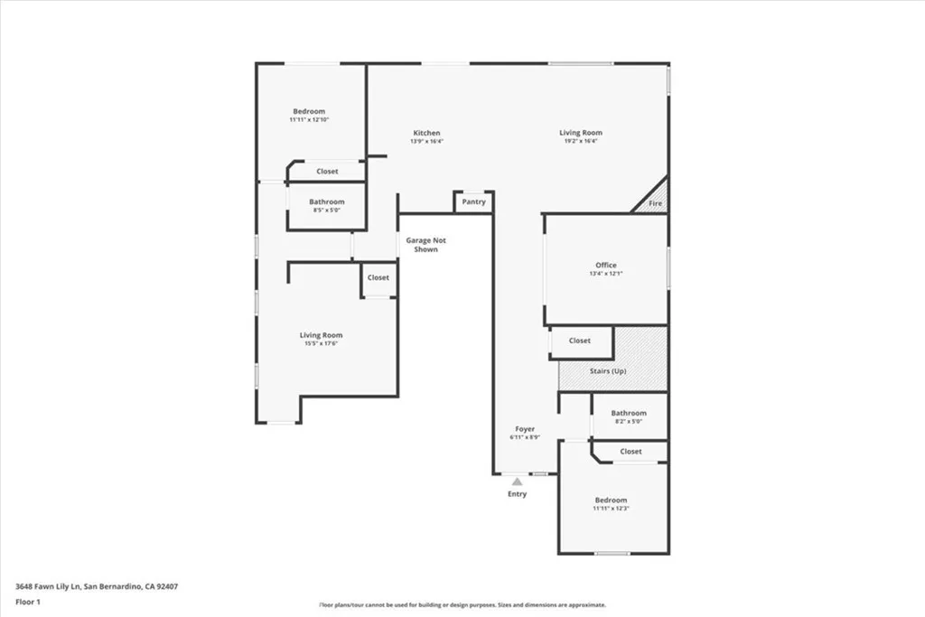
3648 Fawn Lily Lane, San Bernardino CA 92407
Community: Rosena Ranch
This Residential property was built in 2016 and is priced at $779,900. Please see the additional details below.
Modern living in the highly sought community of Rosena Ranch. Built and designed by Lennar, NextGen Multigenerational Home. Offering approximately 3,152 square feet of living space, five bedrooms and three full baths, and a bonus room, plus bedroom and full bathroom in the attached next-gen suite plus. Enter through the front and find the main floor bedroom and bathroom and separate formal dining room and the spacious family room and kitchen island. Conveniently located off the kitchen is the interior garage access door, did I mention garage and the interior entrance to the next-gen suite.The Garage has split A/C unit!! The next-gen suite offers a kitchenette with built in sink, cabinetry and space for a refrigerator as well as a closet for a stackable washer and dryer off the separate living area, full bathroom with stand up shower, separate bedroom, private access to the rear yard and finally its own exterior entrance. Upstairs, find the large primary suite with mountain views, large private bathroom with dual vanities, separate tub and shower and large walk-in closet. Completing the second level are the large secondary bedrooms, additional full bathroom with dual vanities and separate water closet, large laundry room with attached utility/linen closet. Outside, the entertainment space with wood-burning fire pit, artificial green turf. Club House With fitness center and amenities, including a two pools, BBQ pits, club house with meeting room, and Rosena Ranch provides a safe and luxurious environment for its residents.













































