Listing provided courtesy of Steve Lazaro of First Team Real Estate - Cerritos. Last updated . Listing information © 2025 SANDICOR.
Asking Price: $915,000
11523 Richeon, Downey CA 90241
Community:
This Residential property was built in 1950 and is priced at $915,000. Please see the additional details below.
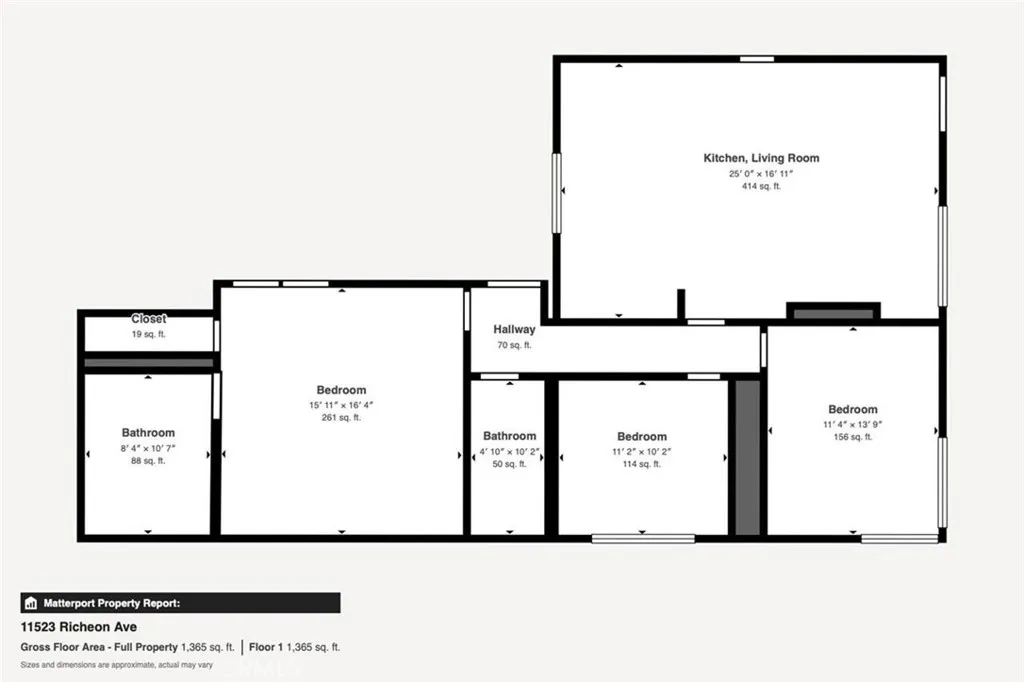
Charming 3-bed, 2-bath home on a spacious lot in a quiet neighborhood in the city of Downey with modern finishes and recent upgrades. Bright open living area flows to an updated kitchen with sleek countertops and stainless appliances. Large private backyard perfect for entertaining or future expansion move-in ready.



























