Listing provided courtesy of Jason Cook of Coldwell Banker Realty. Last updated . Listing information © 2025 SANDICOR.
Asking Price: $1,149,000
2364 Canyon Drive, Los Angeles CA 90068
Community:
This Residential property was built in 1923 and is priced at $1,149,000. Please see the additional details below.
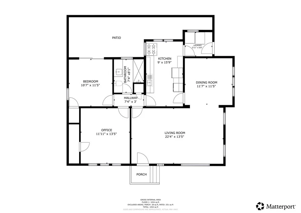
Charming 1923 home in the heart of Bronson Canyon, just moments from Griffith Park and the shops and restaurants of Franklin Village. This inviting 2-bedroom, 1-bath residence is located in one of the Hollywood Hills most desirable neighborhoods. Filled with natural light, the home features original hardwood floors, a remodeled bathroom, and a comfortable, functional layout. The living room and adjacent dining area are both lined with oversized windows, filling the space with abundant natural light and creating a warm, inviting setting for everyday living or entertaining. The outdoor space offers a spacious, usable patio framed by lush hillside greenery, creating a private and tranquil setting ideal for relaxing or entertaining. A detached one-car garage plus additional driveway provides flexibility for parking, storage, or potential future additional dwelling unit (ADU). Lovingly maintained over the years, the home is move-in ready while offering the flexibility for a buyer to personalize and update at their own pace. Improvements include a newer roof, updated plumbing, and termite clearance, providing peace of mind and a solid foundation for future enhancements. A wonderful blend of character, comfort, and locationthis is a rare opportunity to enjoy canyon living in one of Los Angeles most sought-after neighborhoods.











































