Listing provided courtesy of Maria Rideaux of Elevate Real Estate Agency. Last updated . Listing information © 2025 SANDICOR.
Asking Price: $585,000
12940 Blair Street, Victorville CA 92392
Community:
This Residential property was built in 2004 and is priced at $585,000. Please see the additional details below.
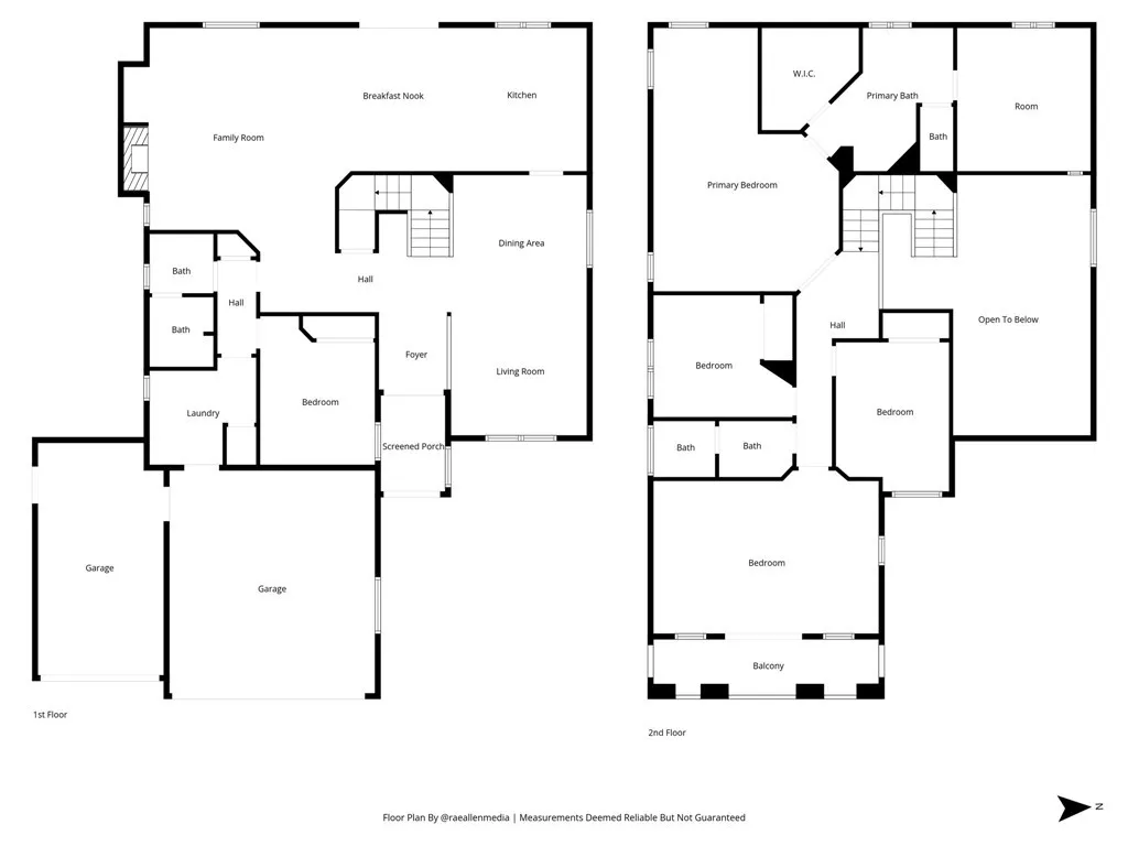
Spacious Victorville Home with Flexible Living This 5 bedroom, 3 bathroom home offers approximately 2,900 sq ft of living space on a 10,200 sq ft lot. The open floor plan includes a convenient downstairs bedroom and full bathideal for guests or multi-generational living. Upstairs features additional bedrooms plus a versatile loft conversion, perfect as a large bedroom, bonus room, or office. The primary suite includes a private retreat currently been used as a bedroom. Enjoy new wood flooring, two newer AC units, and leased solar for improved energy efficiency. The property also offers RV parking and is conveniently located near shopping, dining, and everyday amenities, including 15 minutes to the freeway for easy commute. A must-see with plenty of space and potential!








































