Listing provided courtesy of Dick Keenan of NextHome Central Coast. Last updated . Listing information © 2025 SANDICOR.
Asking Price: $639,900
2256 Hanover Way, Santa Maria CA 93458
Community:
This Residential property was built in 1995 and is priced at $639,900. Please see the additional details below.
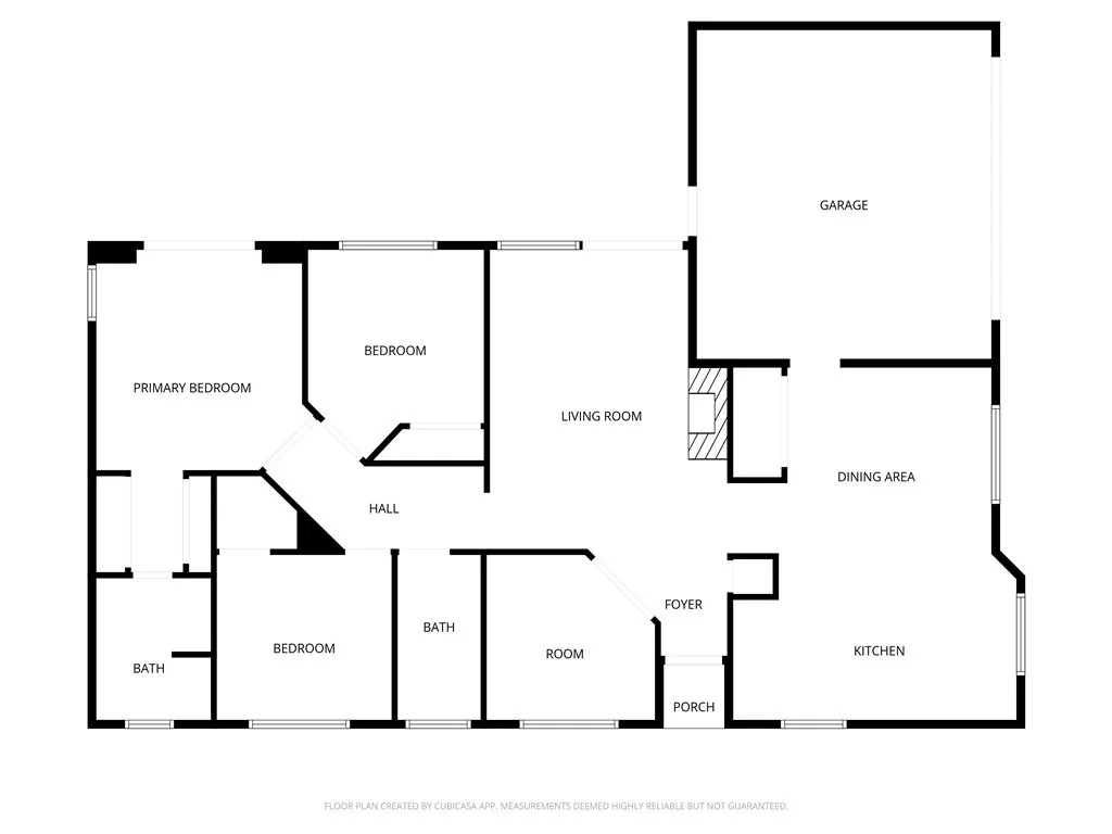
Welcome to 2256 Hanover in Santa Maria, a thoughtfully updated single-level residence located within the gated community of Regency Estates, near Preisker Park. Offering a flexible floor plan with four bedrooms, or three bedrooms plus a double-door office, this home is well-suited for both everyday living and remote work needs. The interior is centered around an expansive great room, highlighted by high-sloping ceilings and an abundance of natural light from oversized windows. A fireplace with a tile hearth and classic white mantel serves as a warm focal point, while wide sliding glass doors provide seamless access to the rear grounds, enhancing indoor-outdoor living. Large-format tile flooring transitions into plush carpeting in the main seating area, creating a subtle yet functional separation of space. The kitchen has been tastefully updated with new appliances, granite countertops, and a generous dining area designed for both daily use and entertaining. Throughout the home, recent improvements include fresh interior paint, new carpet, and durable vinyl plank flooring, delivering a clean and cohesive aesthetic. Both bathrooms have been upgraded with new granite countertops, updated sinks, and vinyl plank flooring. The primary suite features dual sinks, offering added convenience and functionality. Additional amenities include a two-car attached garage and access to community features such as a pool and clubhouse, all within a secure and well-maintained setting. Conveniently located near parks, shopping, and local amenities, this home presents an exceptional opportunity f




































