Listing provided courtesy of Bill Ruane of Estate Properties. Last updated . Listing information © 2025 SANDICOR.
Asking Price: $1,750,000
10775 Tabor Street, Los Angeles CA 90034
Community:
This Residential property was built in 1926 and is priced at $1,750,000. Please see the additional details below.
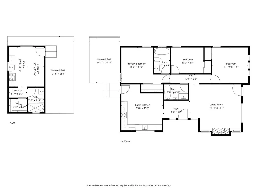
Beautifully, fully updated property featuring a brand-new ADU and a refreshed main home! The main house features a welcoming front porch in the front yard. Enter through the front door into a bright living room with a fireplace. The living room flows directly into a modern kitchen with soft-close cabinetry, new appliances including a 5-burner stove, oven, and dishwasher. All three bedrooms are thoughtfully located on the east side of the home, providing the owner a functional layout. A full bathroom sits between two bedrooms and the primary suite offers an attached full bathroom. The home also includes its own HVAC unit and a separate side entrance. The ADU is privately situated on the north end of the property and has its own side entrance. The ADU features a 3/4 bathroom, laundry hookups, and a kitchen with a 5-burner stove and oven, along with extra storage space. The ADU has its own mini-split unit and separate water heater for complete independence and efficiency. This turnkey property boasts two separate living spaces with vinyl plank flooring, recessed lighting, and double-paned windows, presenting an exceptional opportunity for flexible living, rental income, or multi-generational use.



































